Leonhard: Zentral gelegene 2 - Zimmerwohnung mit Loggia nahe MUMUTH und Stadtpark
Kauf € 226.000,00
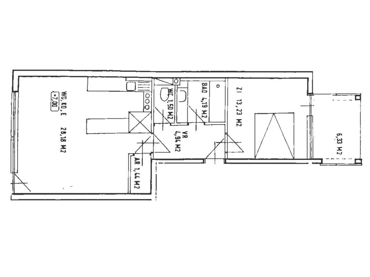
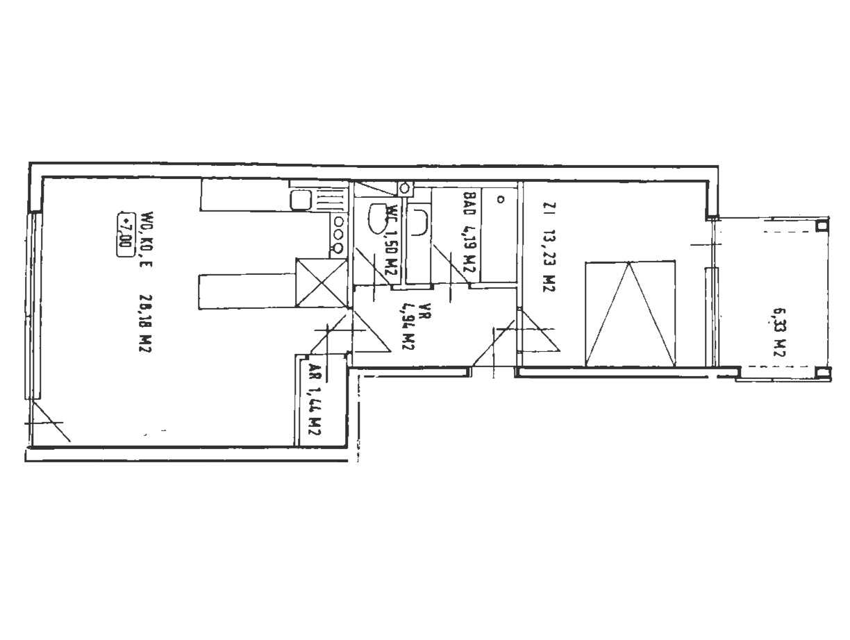
8010 Graz, Wfl. ca. 51 m²
Diese ruhige und äußerst zentral gelegene 2-Zimmerwohnung befindet sich im beliebten Bezirk Leonhard in unmittelbarer Nähe zur Musikuniversität (MUMUTH), Karl-Franzens-Universität und Technischer Universität.
Sie liegt im 2. Liftstock eines kleinen Mehrparteienhauses (11 Wohneinheiten) und besteht aus 1 Vorraum, 1 Wohn-Essbereich mit integrierter Küchenecke, 1 Schlafraum, 1 Loggia,
1 Badezimmer mit Badewanne, 1 Abstellraum, 1 WC und 1 Kellerabteil.
Infrastruktur: Einrichtungen wie Kindergärten, Schulen, Ärzte, Apotheke, Bank, Lebensmittelgeschäfte, Bauernmarkt etc. sind Fußläufig zu erreichen.
Gute Anbindung zur Autobahn A 2 und A9 und an das Grazer Straßenverkehrsnetz der Linien 7, 17 und E1.
Heizung: Fernwärme
Gesamtkosten pro Monat: EUR 308,38 (inkl. USt., exkl. Strom und exkl. Heizung)
Betriebskosten: EUR 245,31 inkl. 10% USt., und Rücklage: EUR 60,09
HWB (kwh/m²/a): 84,1
